物件の特徴

■アールギャラリー小牧市久保一色の家4期 B号棟■
■完成済・内覧可
■補助金80万円対象物件
■IOT対応電動シャッター(1階部分)
■長期優良住宅■ZEH水準
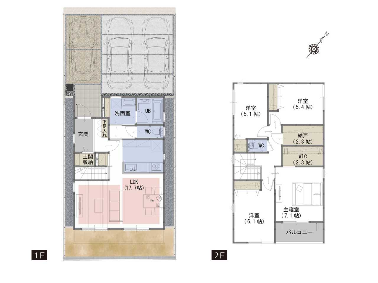
■並列駐車3台可(車種による)
■IOT対応スマートハウス
■EVコンセント
■宅配BOX
■名鉄小牧線「田県神社前」駅徒歩7分

〈おすすめポイント〉
■豊富な収納
WICなど生活スタイルに合わせて住空間を確保
■コミュニケーションがとりやすい空間設計
リビングを見渡せる対面式キッチンだからお子様がいても安心
■耐震等級3
大切な家族を守る為、地震に強く安心して住める耐震等級最高レベル
■吹付断熱の家
夏は冷気を逃がさず、冬は室温を逃さない省エネ快適な家
■アフターメンテナンス
無料定期点検(1年、2年、5年、10年) 最長60年

周辺環境

  • 一色保育園
    480m
  • 美鳥幼稚園
    1240m
  • アオキスーパー小牧店
    790m
  • セブンイレブン久保一色店
    710m
  • かなずみクリニック
    340m
  • 一色ふれあい公園
    440m
この物件を見学したい方は、
こちらからご予約ください!

物件情報

※学校区は住所から自動判定したものであり、保証できる情報ではございません。正確な学校区はお問い合わせ下さい。
この物件のお支払い例
価格
3,480万円
月々
84,742円
頭金 0円
ボーナス払い 0円
※上記支払例の借入条件:金利0.8%、借入総額3,480 万円、借入期間40年
  • ・提携サイト等より掲載されている物件情報につきましては、不動産会社詳細情報にリンクされていないものがあります。
  • ・間取図は、現況を優先させていただきます。
  • ・映像は物件の一部を撮影したものです。物件の契約にあたっての最終判断はご自身の判断に基づいて行ってください。