物件の特徴

―アールギャラリー緑区鶴が沢の家2期 B号棟―

●完成済・内覧可
●補助金80万円対象物件
■キャンペーン実施中■
カップボード+照明orカーテン+照明 プレゼント
※詳細は担当者までお問い合わせください。
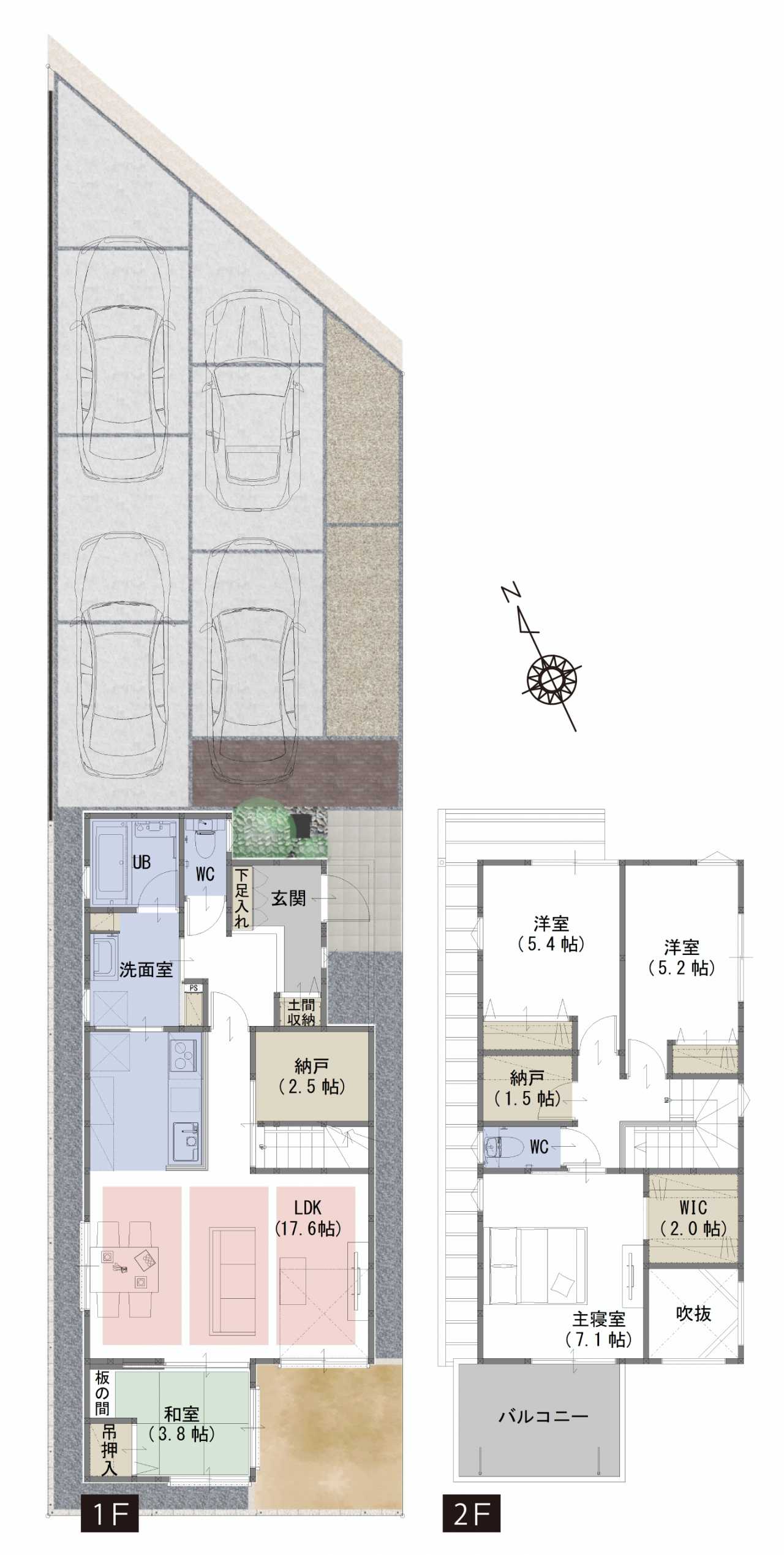
●IOT対応電動シャッター(1階部分)●長期優良住宅
●ZEH水準●4台駐車可能(車種による)
●IOT対応スマートハウス●EVコンセント●宅配BOX
●地下鉄桜通線「徳重」駅徒歩約12分

〈おすすめポイント〉
■豊富な収納
WIC、納戸、土間収納など生活スタイルに合わせて住空間を確保
■コミュニケーションがとりやすい空間設計
リビングを見渡せる対面式キッチンだからお子様がいても安心
■耐震等級3
大切な家族を守る為、地震に強く安心して住める耐震等級最高レベル
■吹付断熱の家
夏は冷気を逃がさず、冬は室温を逃さない省エネ快適な家
■アフターメンテナンス
無料定期点検(1年、2年、5年、10年) 最長60年保証。

周辺環境

  • アピタ緑店
    450m
  • ヒルズウォーク徳重ガーデンズ
    850m
  • 徳重幼稚園
    600m
  • 竹内クリニック
    450m
  • 鶴が沢東公園
    120m
  • 梨の木公園
    350m
この物件を見学したい方は、
こちらからご予約ください!

物件情報

※学校区は住所から自動判定したものであり、保証できる情報ではございません。正確な学校区はお問い合わせ下さい。
この物件のお支払い例
価格
5,680万円
月々
138,314円
頭金 0円
ボーナス払い 0円
※上記支払例の借入条件:金利0.8%、借入総額5,680 万円、借入期間40年
  • ・提携サイト等より掲載されている物件情報につきましては、不動産会社詳細情報にリンクされていないものがあります。
  • ・間取図は、現況を優先させていただきます。
  • ・映像は物件の一部を撮影したものです。物件の契約にあたっての最終判断はご自身の判断に基づいて行ってください。